Back to Listings
MLS# 627303 1139 Pine Grove Road Lugoff, SC 29078
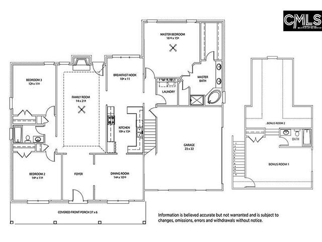
$ 549,000 - 4 Bed, 3 Bath, 0 Half - 2431 Square Feet - 4.42 Acres
1139 Pine Grove Road
Price$ 549,000
Bedrooms4
Full Baths3
Half Baths0
Sq Ft2431
Lot Size4.42
MLS#627303
LocationLugoff
SubdivisionPINE GROVE CROSSING
CountyKershaw
Year Built2025
DescriptionNew Construction with Craftsman Style Accents situated on 4.42 acres in Lugoff, where Country living meets modern comfort. The thoughtfully designed floor plan features 3 bedrooms on the main level, plus a 4th bedroom, full bath, and versatile flex room upstairs—perfect for guests, a home office, or recreation space. Enjoy a split-bedroom layout for added privacy, with a luxurious primary suite that includes a walk-in closet, oversized soaking tub, and separate shower. The open-concept kitchen and great room invite easy entertaining and everyday connection, featuring granite countertops, luxury vinyl plank flooring, and an adjoining dining area. Ceramic tile enhances the bathrooms for both beauty and durability. An attached 2-car side-load garage completes this well-built home. Disclaimer: CMLS has not reviewed and, therefore, does not endorse vendors who may appear in listings.
Features
Style : Traditional
Foundation : Slab
Exterior Finish : Vinyl
Great Room : Ceiling Fan,Floors-Luxury Vinyl Plank
Kitchen : Floors-Luxury Vinyl Plank
Master Bedroom : Separate Shower,Closet-Walk in,Floors - Carpet
Laundry : Heated Space
2nd Bedroom : Floors - Carpet
3rd Bedroom : Floors - Carpet
4th Bedroom : Floors - Carpet
Basement : No Basement
Equipment : Dishwasher,Refrigerator
Heating : Central,Heat Pump 1st Lvl
Cooling : Central,Heat Pump 1st Lvl
Water : Public
Sewer : Septic
Exterior : Deck,Front Porch - Covered
Elementary School : Wateree
Middle School : Lugoff-Elgin
High School : Lugoff-Elgin
Listing courtesy of COLDWELL BANKER REALTY - 803-788-2811
Copyright 2026 Consolidated MLS. All rights reserved. Information Deemed Reliable But Not Guaranteed. Any use of search facilities of data on the site, other than by a consumer looking to purchase real estate is prohibited.


